Дом по адресу Новосибирск, Новосибирский район, за 4700000 р.

Адрес Новосибирск, Новосибирский район, Архитектор территория снт
Цена 4 700 000 р.
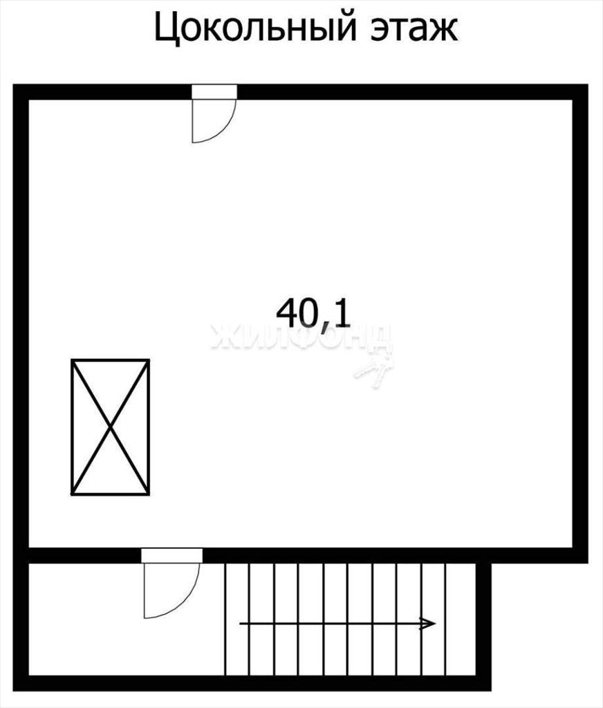
Площадь дома 99,2 м2, участка 9,15 м2
Дача по ул. снт Ясная поляна. Продаётся дача с возможностью постоянного проживания и пропиской . Зимний проезд, дорога чистится постоянно, возможно круглогодичное проживание. В общество заведена городская вода, есть возможность подключения. СНТ Ясная поляна ост. Голубой Залив. До Обского моря 20 минут пешком, 8 минут на машине. До остановки автобуса и магазина 10 минут пешком. Дом капитальный : цокольный этаж из ФБС блоков с железобетонным перекрытием, с хорошим сухим овощехранилищем. Первый этаж из сибита и облицован кирпичом , пластиковые окна, установлена русская печь, в доме предусмотрено помещение для санузла. На мансардный этаж ведет 2х маршевая лестница , мансардный этаж без отделки. Канализация-септик на три кольца . На ухоженном участке располагается баня из бревна , капитальная теплица, много плодово-ягодных посадок и цветник, свой берёзовый лесок . Отличное место для отдыха! Приглашаем на просмотр! Возможен обмен на вашу недвижимость. Возможна продажа в рассрочку. При звонке, пожалуйста, сообщите номер варианта - JV000080339742
Объявление № 23195857
Дата подачи:
26 августа 2025 г. 8:57
Дата обновления:
26 августа 2025 г. 8:57
Просмотров 13 Хотите продать быстрее?

Продавец
Мария Викторовна
Показать номер телефона
Пожаловаться
Комментарии:
Добавить